Jahr: 1991-92

Adresse: Kurfürstendamm 16

Auftraggeber: Präzisa Wohnanlagen

Funktion: Bürogebäude

Zusammenarbeit: Udo Detlev Larisch (Büro Bandel)

Archivmaterial bei: Privat

 

Wohnhaus aus 1911, im Krieg zerstört und in 1952 wieder aufgebaut. Nach Erwerb durch Bendzko Immobilien aufgestockt und zu einem representativen Büro umgebaut. Die horizontale Fenstereinteilung wird durch eine vertikale Fassadengliederung ersetzt.

Vorgehängte Granitplatten sollen eine 'Reklame Architektur' verhindern.

Heute (2013): Ironie des Schicksals: die Granietplatten sind im Sockelbereich entfernt um eine 'Reklame Architektur' zu realisieren.
PDF öffnen "Bauwelt 31-32 "

bwd  Seite 2/2  fwd
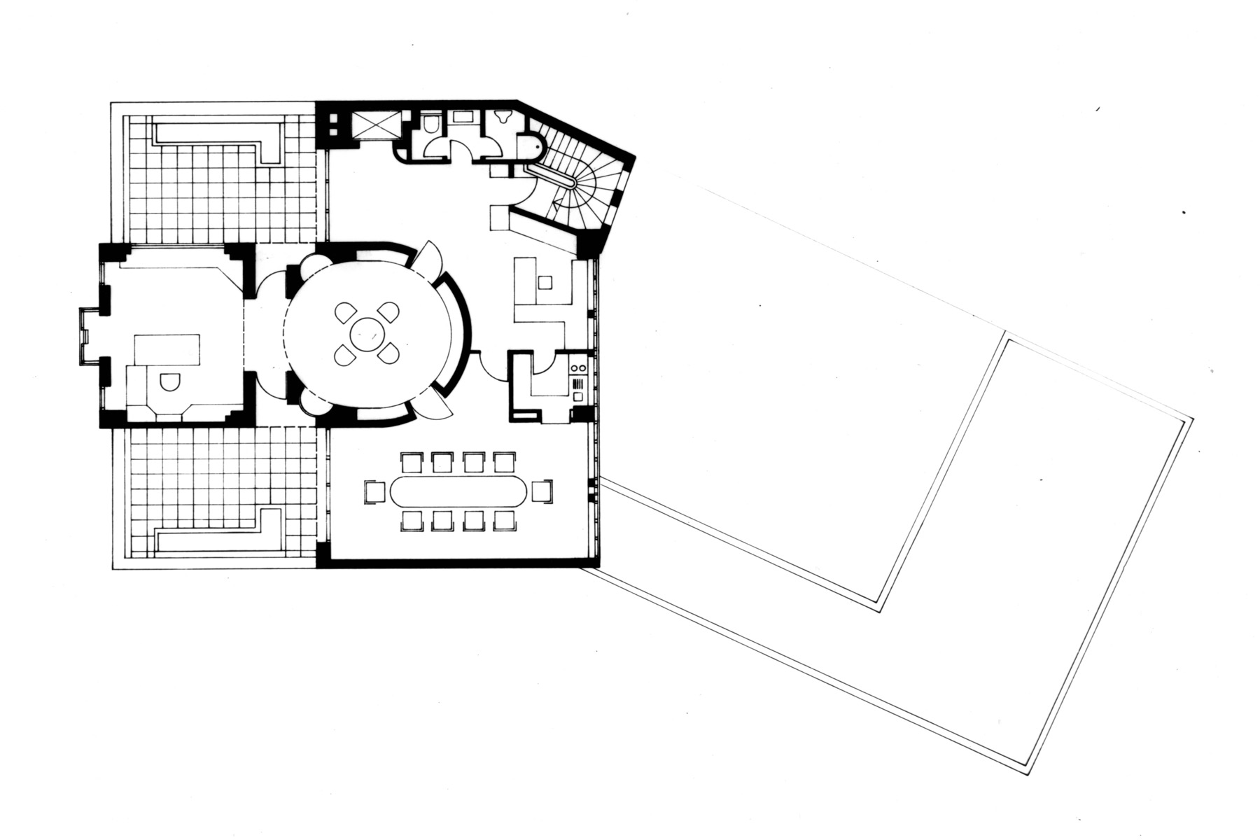
chefetage.jpg
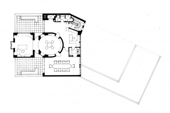
erdgeschoss.jpg
obergeschoss.jpg