Jahr: 1964-1966

Adresse: Wutzkyallee

Auftraggeber: DeGeWo

Funktion: Ladenzentrum

Zusammenarbeit:  Ulrich Wolff, Jens Petersen

Archivmaterial bei: Berlinische Galerie

 

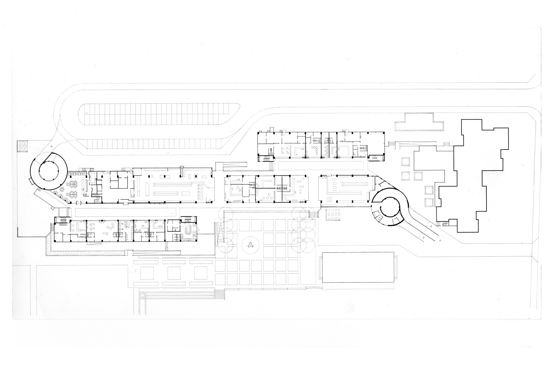
Ein 4-geschossiges Ladenzentrum von 5.000 m2 gegensätzlich konzipiert zum Wohnungsbau. Parkplätze im Obergeschoss sind über Brücken mit der zweihüftigen Ladenanlage mit Straßencharakter im Innenbereich verbunden. Die Farbgebung der Parkdeckverkleidung aus Eternit-Sichtblenden war ein dunkelrot/dunkelgrün Rombenmuster.

Heute: Das Ladenzentrum ist total umgebaut. Nur die Spindelrampen zum Parkdach erinnern noch an den ursprünglichen Entwurf. 
PDF öffnen "Bauwelt 15"
PDF öffnen "Architektur und Wohnwelt"
PDF öffnen "Baubeschreibung"

bwd  Seite 2/2  fwd
wutzky_erdgeschoss.jpg
wutzky_innen.jpg
wutzky_model.jpg
wutzky_suedansicht.jpg