Jahr: 1964-1965

Adresse: Pücklerstraße 21, Dahlem

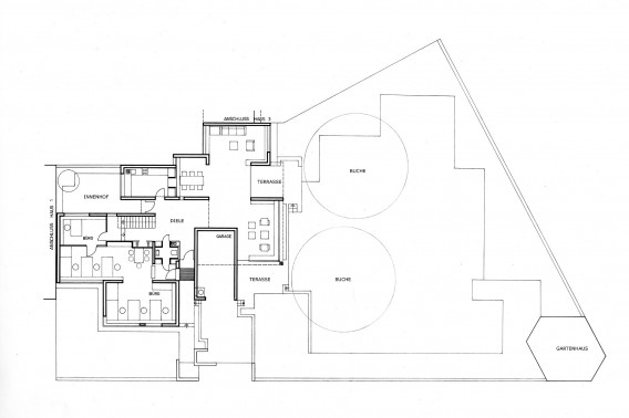
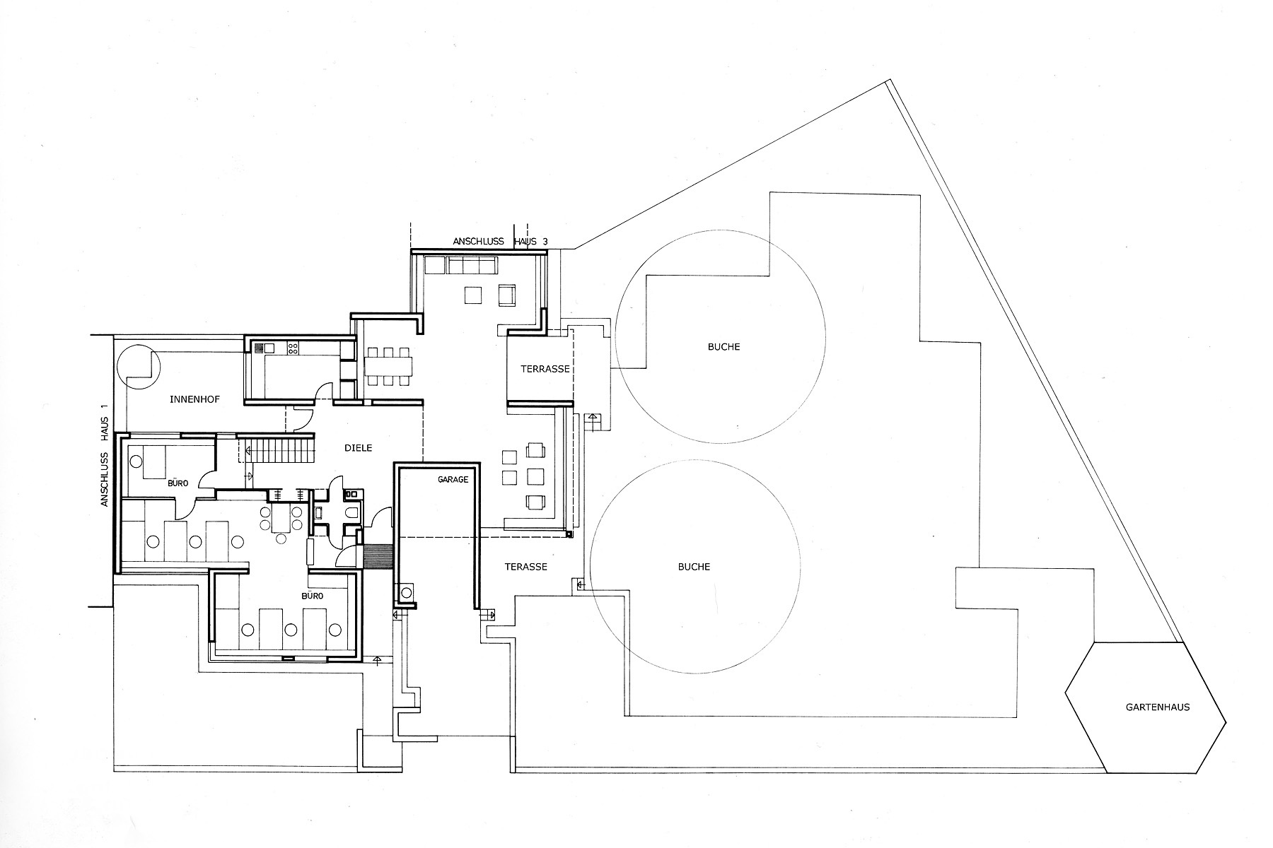
Auftraggeber: Hans Bandel

Funktion: Wohnhaus

Zusammenarbeit: keine Angabe

Archivmaterial bei: Berlinische Galerie

 

Wohnhaus und Büro von Hans Bandel (Weiterlesen)

Heute: 2013 sind Haus und Bäume durch den neuen Besitzer abgerissen. Nur das Gartenhaus erinnert an die historische Einbindung des alten Grundstückes.

 

bwd  Seite 2/2  fwd
06-hausbandel-erdgeschoss.jpg
07-hausbandel-obergeschoss.jpg